BL認定商品です。トップレールは道路向き、手すりは道路側に持ち出した手すりです。階下方向の視野が妨げられるので、高所恐怖感がやわらぎます。
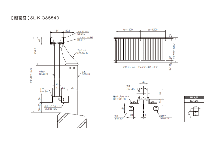
【断面図】
カサレール工法 SRシリーズ
カサレール工法 STシリーズ
ボイドアンカー工法
ツインアンカー工法
ダイキャストアンカー工法
アルミネマキアンカー
横付け工法
壁支持工法(トップレール)/カク
壁支持工法(下枠)
内控え柱+くぐり止め(オプション)