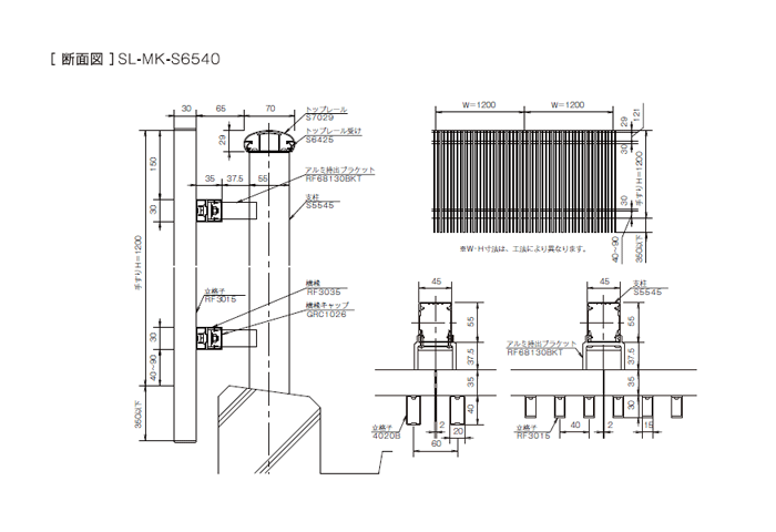
千本格子を支柱の外側に持ち出すことで、ストライプ模様の平面をおもわせるようなデザインに仕上がります。
【断面図】
カサレール工法 SRシリーズ
カサレール工法 STシリーズ
ボイドアンカー工法
ツインアンカー工法
ダイキャストアンカー工法
アルミネマキアンカー
壁支持工法(トップレール)/カク
壁支持工法(下枠)
内控え柱+くぐり止め(オプション)