株式会社サンレールのアルミ手摺、フラットレール格子タイプ(シリーズ)

会社案内

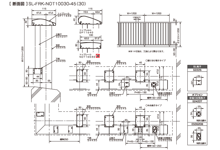
フラットレール格子タイプ

持ち出し一段立格子タイプ

スロープ対応
BL対応
社内基準対応
防振格子対応
マークについて

フラットレール連続ガラスス手すりのⅠ-Ⅱ-Ⅲ型に連結可能な格子タイプです。

CADデータはコチラ
ページTOPに戻る