内側からメンテナンス作業が簡単にできる躯体(スラブ)をパネルで覆い隠せるモダンなデザインに仕上げます。
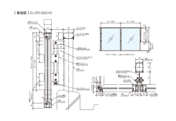
【断面図】
ボイドアンカー工法
ツインアンカー工法
ダイキャストアンカー工法
壁支持工法(トップレール)/カク
壁支持工法(下枠)