株式会社サンレールのアルミ手摺、スラブ隠しパネルレール(シリーズ)
アルミ手摺
デザイン一覧
シリーズ一覧
アルミ笠木
フラットレール
クリアレール
窓手摺 面格子
パーテーション
ディフェンスレール
BL認定製品
工 法
工法一覧
BL工法一覧
施工実例
用途別
製品別
カタログ
カタログ一覧
CAD 技術資料
CADデータ
技術資料
HOME
>
アルミ手摺り シリーズ一覧
>
フラットレール一覧
> スラブ隠しパネルレール
アルミ手摺 シリーズ一覧
フラットレール
クリアレール
持ち出しレール
スライドレール
ブラインドレール
アウトトップレール
イントップレール
カクレール
縦横ルーバーレ-ル
面格子
アルミ手摺 デザイン一覧
アルミ笠木
フラットレール
クリアレール
窓手摺 面格子
パーテーション
ディフェンスレール
BL認定製品
工法一覧
BL工法一覧
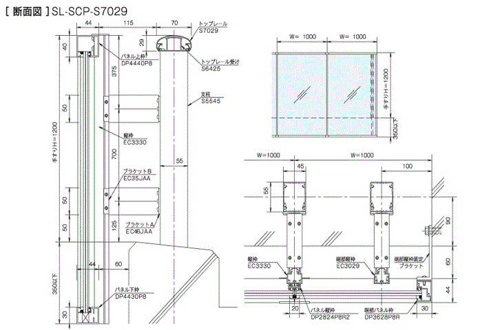
スラブ隠しパネルレール
一段ガラスデザイン
躯体(スラブ)をパネルで覆い隠せるモダンなデザインに仕上げます。
【断面図】
ボイドアンカー工法
ボイドアンカー工法の詳細はこちら
ツインアンカー工法
ツインアンカー工法の詳細はこちら
ダイキャストアンカー工法
ダイキャストアンカー工法の詳細はこちら
壁支持工法(トップレール)/カク
壁支持工法(トップレール)/カクの詳細はこちら
壁支持工法(下枠)
壁支持工法(下枠)の詳細はこちら