株式会社サンレールのアルミ手摺、ライディングレール(デザイン)
アルミ手摺
デザイン一覧
シリーズ一覧
アルミ笠木
フラットレール
クリアレール
窓手摺 面格子
パーテーション
ディフェンスレール
BL認定製品
工 法
工法一覧
BL工法一覧
施工実例
用途別
製品別
カタログ
カタログ一覧
CAD 技術資料
CADデータ
技術資料
HOME
>
アルミ手摺り デザイン一覧
>
オプション一覧
> ライディングレール(オプション)
アルミ手摺 デザイン一覧
立格子<持ち出し>
立格子<芯納まり>
パネル<持ち出し>
パネル<芯納まり>
ルーバー
横格子
トップレール
門扉 侵入防止扉
防風スクリーン
侵入防止柵
面格子
オプション
アルミ手摺 シリーズ一覧
アルミ笠木
フラットレール
クリアレール
窓手摺 面格子
パーテーション
ディフェンスレール
BL認定製品
工法一覧
BL工法一覧
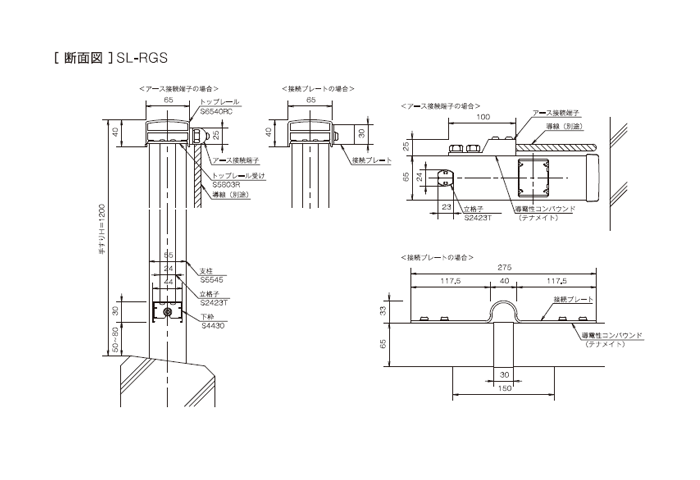
ライディングレール(オプション)
立格子デザイン
万一の落雷に備える安心の棟上尊体システム。
【断面図】