株式会社サンレールのアルミ手摺、侵入防止扉(シリーズ)
アルミ手摺
デザイン一覧
シリーズ一覧
アルミ笠木
フラットレール
クリアレール
窓手摺 面格子
パーテーション
ディフェンスレール
BL認定製品
工 法
工法一覧
BL工法一覧
施工実例
用途別
製品別
カタログ
カタログ一覧
CAD 技術資料
CADデータ
技術資料
HOME
>
アルミ手摺り シリーズ一覧
>
カクレール一覧
> 侵入防止扉
アルミ手摺 シリーズ一覧
フラットレール
クリアレール
持ち出しレール
スライドレール
ブラインドレール
アウトトップレール
イントップレール
カクレール
縦横ルーバーレ-ル
面格子
アルミ手摺 デザイン一覧
アルミ笠木
フラットレール
クリアレール
窓手摺 面格子
パーテーション
ディフェンスレール
BL認定製品
工法一覧
BL工法一覧
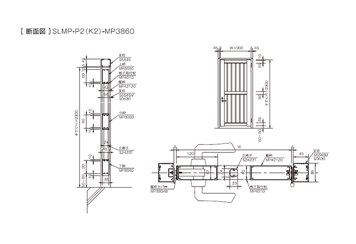
侵入防止扉
立格子デザイン
【断面図】