嵌合した羽根の内側から支柱にネジで固定します。キレのあるアルミ独特の光を持った仕上りになります。低・中・高層階に最適です。
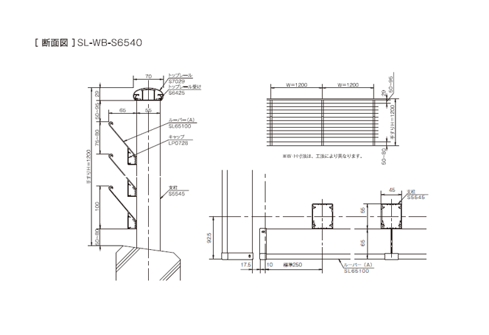
【断面図】
カサレール工法 SRシリーズ
カサレール工法 STシリーズ
ボイドアンカー工法
ツインアンカー工法
ダイキャストアンカー工法
アルミネマキアンカー
壁支持工法(トップレール)/カク
壁支持工法(下枠)
内控え柱+くぐり止め(オプション)