イントップ(格子タイプ)
CADデータ(DXF) ダウンロード
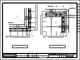
S6540イントップ二段立格子
従来型先付け工法
ツインアンカー工法
ボイドアンカー工法
カサレール一体型工法
カサレール
ノックダウン工法
カサレール
SRアンカー工法

SLDダイキャスト
アンカー工法
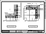
S7029イントップ二段立格子
従来型先付け工法
ツインアンカー工法
ボイドアンカー工法
カサレール一体型工法
カサレール
ノックダウン工法
カサレール
SRアンカー工法

SLDダイキャスト
アンカー工法
コーナー部詳細図
S6540コーナー
S7209コーナー